8階は現在募集がありません
1フロア募集区画あり

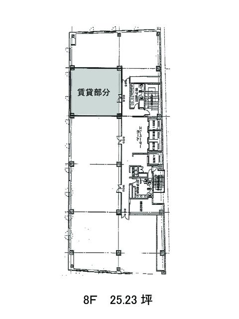
内幸町ダイビル 8階

前の写真 次の写真

物件概要

物件番号

422-00007-130

物件名

内幸町ダイビル

所在地

面積

25.23坪

賃料(共益費含)


入居日

募集終了

保証金

礼金

更新料

償却費

竣工

1983年1月

構造

SRC

規模

地上9階/地下2階

トイレ

男女別

空調

セントラル

エレベーター

セキュリティ

駐車場

耐震

新耐震基準

基準階天井高

2500mm

空室延床面積

40.23坪

最寄駅

情報更新日

2026/04/10

内幸町ダイビルのテナント募集中区画

階数 面積 賃料(共益費含む) 保証金 入居可能日 検討リスト 詳細
1 40.23坪 応相談(応相談) 応相談 2026年7月上旬
…新着物件

内幸町ダイビルのアクセス

内幸町ダイビルの物件情報

内幸町ダイビル(千代田区内幸町)は内幸町駅(出口)から徒歩3分の賃貸オフィスです。
1983年竣工。リニューアルもされており、施工年に関わらずグレーを基調とした重厚感のあるモダンな雰囲気が特徴的な洗練されたオフィスです。基準階面積は200坪を超えとても広く、OAフロアや光ファイバーが完備、男女別のトイレは最新の機能性が高いデザイン性のある空間となっています。また交差点の角地のため通風や採光性も良好といえるでしょう。1階にはコンビニが入居しているため大変便利です。
内幸町ダイビルは内幸町駅(出口)の他に新橋駅(7番出口)徒歩4分、日比谷駅(A13番出口)徒歩7分で利用も可能です。

近隣のエリア・駅から探す