内幸町ダイビル 1階新着
物件概要
物件番号
422-00007-144物件名
内幸町ダイビル所在地
- 東京都千代田区内幸町1-3-3
- アクセスマップ
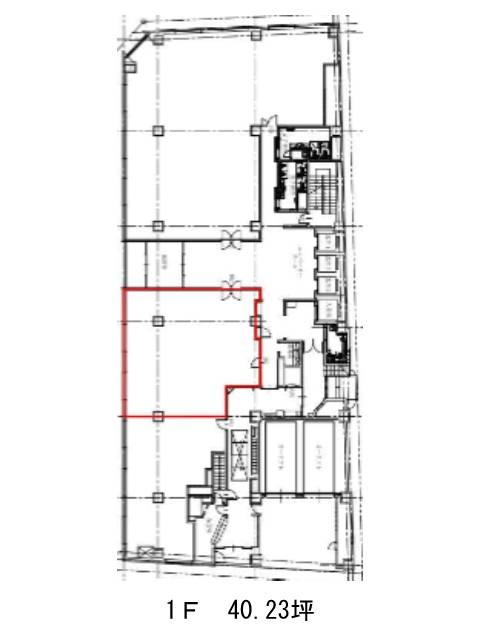
面積
40.23坪賃料(共益費含)
:応相談応相談
入居日
2026年7月上旬保証金
応相談礼金
なし更新料
なし償却費
なし竣工
1983年1月構造
SRC規模
地上9階/地下2階トイレ
男女別空調
セントラルエレベーター
有セキュリティ
駐車場
有耐震
新耐震基準基準階天井高
2500mm空室延床面積
40.23坪情報更新日
2026/02/25内幸町ダイビルのテナント募集中区画
| 階数 | 面積 | 賃料(共益費含む) | 保証金 | 入居可能日 | 検討リスト | 詳細 |
|---|---|---|---|---|---|---|
| 1 | 40.23坪 | 応相談(応相談) | 応相談 | 2026年7月上旬 |
…新着物件
内幸町ダイビルのアクセス
内幸町ダイビルの物件情報
内幸町ダイビル(千代田区内幸町)は内幸町駅(出口)から徒歩3分の賃貸オフィスです。1983年竣工。リニューアルもされており、施工年に関わらずグレーを基調とした重厚感のあるモダンな雰囲気が特徴的な洗練されたオフィスです。基準階面積は200坪を超えとても広く、OAフロアや光ファイバーが完備、男女別のトイレは最新の機能性が高いデザイン性のある空間となっています。また交差点の角地のため通風や採光性も良好といえるでしょう。1階にはコンビニが入居しているため大変便利です。内幸町ダイビルは内幸町駅(出口)の他に新橋駅(7番出口)徒歩4分、日比谷駅(A13番出口)徒歩7分で利用も可能です。

