9階は現在募集がありません
グレイス麹町 9階
物件概要
グレイス麹町のテナント募集中区画
現在、空室がございません。
グレイス麹町のアクセス
グレイス麹町の物件情報
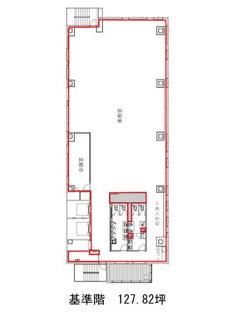
グレイス麹町(千代田区二番町)は麹町駅(6番出口)から徒歩1分の賃貸オフィスです。2022年竣工の築浅物件で、地上12階建ての新耐震基準に適合したオフィスビルです。落ち着いた色を基調としており、外観、内装共に拡張高い雰囲気が感じられます。貸室内の窓は足下に及ぶ大きい窓になっている為、採光良好、フリーアクセス床となっているので、配線しやすいフロアです。個別空調完備、男女別トイレ設置。屋上にはテラスがありちょっとした休憩や打合せスペースにも使えるでしょう。周辺にはコンビニや飲食店もあるためランチにも困りません。グレイス麹町は麹町駅(6番出口)の他に市ヶ谷駅(3番出口)徒歩6分、四ツ谷駅(麹町口)徒歩8分で利用も可能です。

