4階は現在募集がありません
紫ビル 4階
物件概要
紫ビルのテナント募集中区画
現在、空室がございません。
アクセス
紫ビルの物件情報
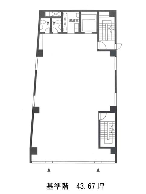
紫ビル(千代田区有楽町)は日比谷駅(A5番出口)から徒歩3分の賃貸オフィスです。周辺はオフィスビルが多いですが、日比谷公園や東京宝塚劇場、帝国劇場など人気スポットも多いエリアです。最寄りは日比谷駅ですが、銀座駅有楽町駅など人が多く集まる駅が徒歩10分圏内に7駅あるので交通の便は大変良いです。外観はミラーウォールでエントランスは開放的に大きく開いたデザインの視認性の高い物件です。室内には男女別のトイレと給湯室があります。また、レイアウトのしやすい無柱空間で床はフリーアクセスです。周辺は飲食店を始め、様々なショップがあるので仕事後の買い物も楽しめるでしょう。紫ビルは日比谷駅(A5番出口)の他に銀座駅(C1番出口)徒歩4分、有楽町駅(日比谷口)徒歩5分で利用も可能です。

