紫ビル 6階
物件概要
物件番号
431-00009-91物件名
紫ビル所在地
- 東京都千代田区有楽町1-2-14
- アクセスマップ
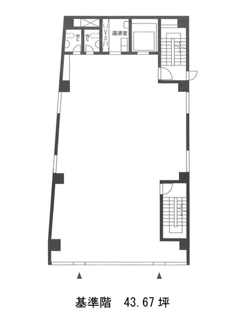
面積
43.67坪賃料(共益費含)
月額1,296,999円(29,700円/坪)
入居日
2026年7月下旬保証金
7,074,540円礼金
なし更新料
新1ケ月償却費
なし竣工
1988年7月構造
RC規模
地上9階/地下1階トイレ
男女別空調
個別空調エレベーター
有セキュリティ
有駐車場
無耐震
新耐震基準基準階天井高
2450mm空室延床面積
43.67坪情報更新日
2026/02/18紫ビルのテナント募集中区画
| 階数 | 面積 | 賃料(共益費含む) | 保証金 | 入居可能日 | 検討リスト | 詳細 |
|---|---|---|---|---|---|---|
| 6 | 43.67坪 | 1,296,999円/月(29,700円/坪) | 707万円 | 2026年7月下旬 |
…新着物件
紫ビルのアクセス
紫ビルの物件情報
紫ビル(千代田区有楽町)は日比谷駅(A5番出口)から徒歩3分の賃貸オフィスです。周辺はオフィスビルが多いですが、日比谷公園や東京宝塚劇場、帝国劇場など人気スポットも多いエリアです。最寄りは日比谷駅ですが、銀座駅有楽町駅など人が多く集まる駅が徒歩10分圏内に7駅あるので交通の便は大変良いです。外観はミラーウォールでエントランスは開放的に大きく開いたデザインの視認性の高い物件です。室内には男女別のトイレと給湯室があります。また、レイアウトのしやすい無柱空間で床はフリーアクセスです。周辺は飲食店を始め、様々なショップがあるので仕事後の買い物も楽しめるでしょう。紫ビルは日比谷駅(A5番出口)の他に銀座駅(C1番出口)徒歩4分、有楽町駅(日比谷口)徒歩5分で利用も可能です。

