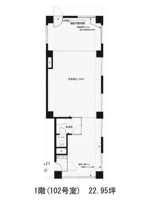
サンパークマンション六番町 1階 102
物件概要
サンパークマンション六番町のテナント募集中区画
| 階数 | 面積 | 賃料(共益費含む) | 保証金 | 入居可能日 | 検討リスト | 詳細 |
|---|---|---|---|---|---|---|
| 1 | 22.95坪 | 363,000円/月(15,818円/坪) | 198万円 | 即 |
…新着物件
アクセス
サンパークマンション六番町の物件情報
サンパークマンション六番町(千代田区六番町)は麹町駅(6番出口)から徒歩5分の賃貸オフィスです。サンパークマンション六番町は麹町駅(6番出口)の他に四ツ谷駅(麹町口)徒歩6分、市ヶ谷駅(3番出口)徒歩6分で利用も可能です。

