3階は現在募集がありません
1フロア募集区画あり

中傳ビル/ナカデンビル 3階

前の写真 次の写真

物件概要

物件番号

540-00001-30

物件名

中傳ビル/ナカデンビル

所在地

面積

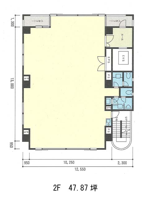
47.87坪

賃料(共益費含)


入居日

募集終了

保証金

礼金

更新料

償却費

竣工

1990年7月

構造

SRC

規模

地上10階

トイレ

男女別

空調

個別空調

エレベーター

セキュリティ

駐車場

耐震

新耐震基準

基準階天井高

空室延床面積

48.91坪

最寄駅

情報更新日

2026/02/05

中傳ビル/ナカデンビルのテナント募集中区画

階数 面積 賃料(共益費含む) 保証金 入居可能日 検討リスト 詳細
9 48.91坪 1,650,000円/月(33,735円/坪) 1,500万円
…新着物件

中傳ビル/ナカデンビルのアクセス

中傳ビル/ナカデンビルの物件情報

中傳ビル/ナカデンビル(台東区花川戸)は浅草駅(5番出口)から徒歩1分の賃貸オフィスです。
中傳ビル/ナカデンビルは浅草駅(5番出口)の他に本所吾妻橋駅(A3番出口)徒歩9分、田原町駅(3番出口)徒歩11分で利用も可能です。

近隣のエリア・駅から探す