8階 8東は現在募集がありません

東京日産台東ビル 8階 8東

前の写真 次の写真

物件概要

物件番号

543-00011-120

物件名

東京日産台東ビル

所在地

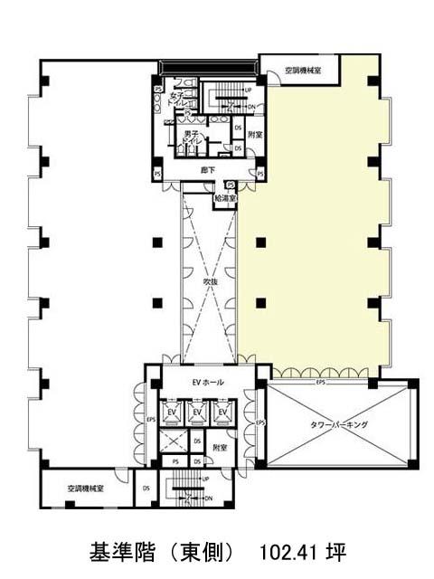
面積

102.41坪

賃料(共益費含)


入居日

募集終了

保証金

礼金

更新料

償却費

竣工

1992年9月

構造

規模

地上10階/地下2階

トイレ

男女別

空調

個別空調

エレベーター

セキュリティ

駐車場

耐震

新耐震基準

基準階天井高

空室延床面積

最寄駅

情報更新日

2024/10/01

東京日産台東ビルのテナント募集中区画

現在、空室がございません。

東京日産台東ビルのアクセス

東京日産台東ビルの物件情報

東京日産台東ビル(台東区元浅草)は稲荷町駅(2番出口)から徒歩3分の賃貸オフィスです。
東京日産台東ビルは稲荷町駅(2番出口)の他に新御徒町駅(A3番出口)徒歩5分、上野駅(2番出口)徒歩8分で利用も可能です。

近隣のエリア・駅から探す