6階は現在募集がありません
中央スカイビル 6階
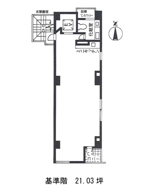
物件概要
中央スカイビルのテナント募集中区画
現在、空室がございません。
中央スカイビルのアクセス
中央スカイビルの物件情報
中央スカイビル(台東区松が谷)は稲荷町駅(2番出口)から徒歩4分の賃貸オフィスです。中央スカイビルは稲荷町駅(2番出口)の他に田原町駅(出口)徒歩7分、新御徒町駅(A4番出口)徒歩8分で利用も可能です。

