7階は現在募集がありません
仲御徒町フロントビル 7階
物件概要
仲御徒町フロントビルのテナント募集中区画
現在、空室がございません。
仲御徒町フロントビルのアクセス
仲御徒町フロントビルの物件情報
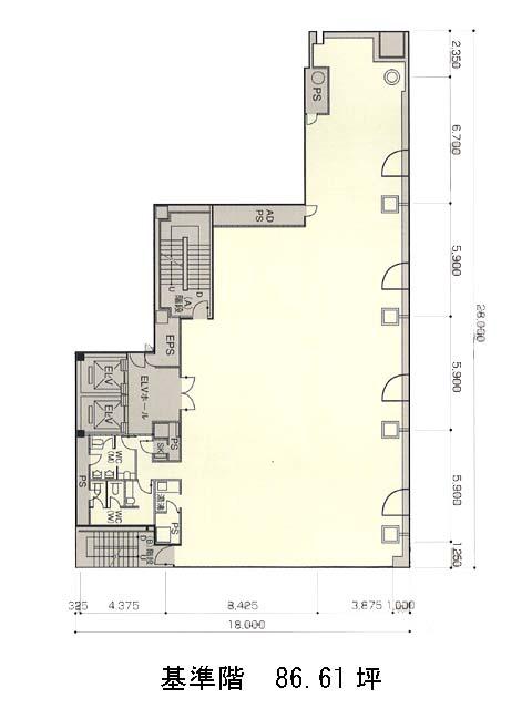
仲御徒町フロントビル(台東区台東)は仲御徒町駅(1番出口)から徒歩2分の賃貸オフィスです。1998年竣工、地上9階、地下2階建ての鉄筋コンクリート造です。昭和通りに面しており、外観内観ともによく管理されているため、清潔感があります。また、重厚感のある外観のため視認性も高いです。室内は約86坪と広く、ほぼ無柱空間となっております。募集時期によっては分割でも募集しています。OAフロア、男女別トイレ、機械警備と設備が充実しておりますのでおすすめです。エレベーターは2基ございます。駐車場は機械式立体駐車場となっております。仲御徒町フロントビルは仲御徒町駅(1番出口)の他に上野御徒町駅(A8番出口)徒歩4分、御徒町駅(南口)徒歩4分で利用も可能です。

