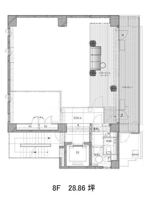
D’sVARIE 御徒町ビルのテナント募集中区画
| 階数 | 面積 | 賃料(共益費含む) | 保証金 | 入居可能日 | 検討リスト | 詳細 |
|---|---|---|---|---|---|---|
| 2 | 38.30坪 | 応相談(応相談) | 応相談 | 2026年1月 |
…新着物件
アクセス
D’sVARIE 御徒町ビルの物件情報
D’sVARIE 御徒町ビル(台東区台東)は仲御徒町駅(3番出口)から徒歩3分の賃貸オフィスです。D’sVARIE 御徒町ビルは仲御徒町駅(3番出口)の他に新御徒町駅(A2番出口)徒歩5分、上野御徒町駅(A8番出口)徒歩5分で利用も可能です。

