7階は現在募集がありません
1フロア募集区画あり

D’sVARIE 御徒町ビル 7階

前の写真 次の写真

物件概要

物件番号

561-00006-71

物件名

D’sVARIE 御徒町ビル

所在地

面積

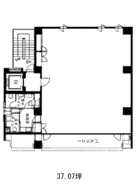
37.07坪

賃料(共益費含)


入居日

募集終了

保証金

礼金

更新料

償却費

竣工

1988年11月

構造

RC

規模

地上9階/地下1階

トイレ

不明

空調

個別空調

エレベーター

セキュリティ

駐車場

耐震

新耐震基準

基準階天井高

3100mm

空室延床面積

48.49坪

最寄駅

情報更新日

2026/02/13

D’sVARIE 御徒町ビルのテナント募集中区画

階数 面積 賃料(共益費含む) 保証金 入居可能日 検討リスト 詳細
5 48.49坪 906,763円/月(18,700円/坪) 329万円
…新着物件

D’sVARIE 御徒町ビルのアクセス

D’sVARIE 御徒町ビルの物件情報

D’sVARIE 御徒町ビル(台東区台東)は仲御徒町駅(3番出口)から徒歩3分の賃貸オフィスです。
D’sVARIE 御徒町ビルは仲御徒町駅(3番出口)の他に新御徒町駅(A2番出口)徒歩5分、上野御徒町駅(A8番出口)徒歩5分で利用も可能です。

近隣のエリア・駅から探す