NEWS京橋のテナント募集中区画
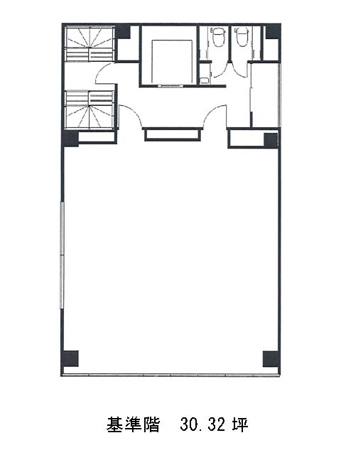
| 階数 | 面積 | 賃料(共益費含む) | 保証金 | 入居可能日 | 検討リスト | 詳細 |
|---|---|---|---|---|---|---|
| 3 | 30.32坪 | 応相談(応相談) | 応相談 | 2025年12月下旬 |
…新着物件
アクセス
NEWS京橋の物件情報
NEWS京橋(中央区京橋)は宝町駅(A3番出口)から徒歩2分の賃貸オフィスです。NEWS京橋は宝町駅(A3番出口)の他に京橋駅(1番出口)徒歩3分、銀座一丁目駅(10番出口)徒歩5分で利用も可能です。

