8階は現在募集がありません
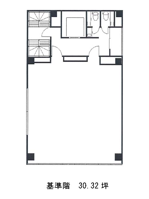
NEWS京橋 8階
物件概要
NEWS京橋のテナント募集中区画
現在、空室がございません。
NEWS京橋のアクセス
NEWS京橋の物件情報
NEWS京橋(中央区京橋)は宝町駅(A3番出口)から徒歩2分の賃貸オフィスです。NEWS京橋は宝町駅(A3番出口)の他に京橋駅(1番出口)徒歩3分、銀座一丁目駅(10番出口)徒歩5分で利用も可能です。

