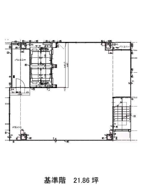
サクラマークス銀座612のテナント募集中区画
| 階数 | 面積 | 賃料(共益費含む) | 保証金 | 入居可能日 | 検討リスト | 詳細 |
|---|---|---|---|---|---|---|
| 6 | 21.88坪 | 1,093,000円/月(49,955円/坪) | 933万円 | 2026年4月下旬 |
…新着物件
アクセス
サクラマークス銀座612の物件情報
サクラマークス銀座612(中央区銀座)は東銀座駅(A1番出口)から徒歩4分の賃貸オフィスです。サクラマークス銀座612は東銀座駅(A1番出口)の他に銀座駅(A5番出口)徒歩4分、新橋駅(1番出口)徒歩7分で利用も可能です。

