9階は現在募集がありません
1フロア募集区画あり

サクラマークス銀座612 9階

前の写真 次の写真

物件概要

物件番号

634-01270-6

物件名

サクラマークス銀座612

所在地

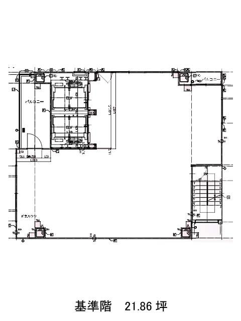
面積

21.85坪

賃料(共益費含)


入居日

募集終了

保証金

礼金

更新料

償却費

竣工

2020年1月

構造

RC

規模

地上13階

トイレ

空調

エレベーター

セキュリティ

駐車場

耐震

新耐震基準

基準階天井高

空室延床面積

21.88坪

最寄駅

情報更新日

2026/01/22

サクラマークス銀座612のテナント募集中区画

階数 面積 賃料(共益費含む) 保証金 入居可能日 検討リスト 詳細
6 21.88坪 1,093,000円/月(49,955円/坪) 933万円 2026年4月下旬
…新着物件

サクラマークス銀座612のアクセス

サクラマークス銀座612の物件情報

サクラマークス銀座612(中央区銀座)は東銀座駅(A1番出口)から徒歩4分の賃貸オフィスです。
サクラマークス銀座612は東銀座駅(A1番出口)の他に銀座駅(A5番出口)徒歩4分、新橋駅(1番出口)徒歩7分で利用も可能です。

近隣のエリア・駅から探す