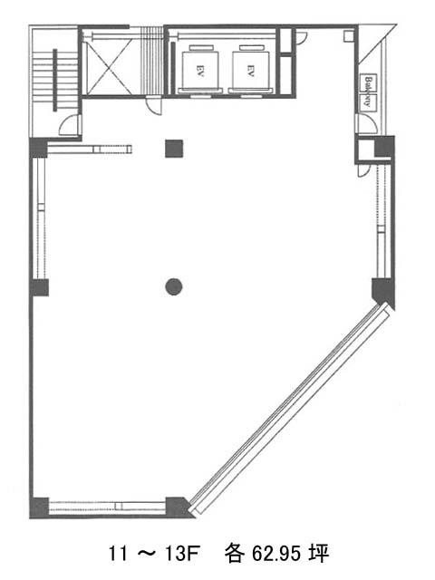
12階は現在募集がありません
デュープレックス銀座タワー5/13 12階
物件概要
デュープレックス銀座タワー5/13のテナント募集中区画
現在、空室がございません。
デュープレックス銀座タワー5/13のアクセス
デュープレックス銀座タワー5/13の物件情報
デュープレックス銀座タワー5/13(中央区銀座)は東銀座駅(4番出口)から徒歩1分の賃貸オフィスです。デュープレックス銀座タワー5/13は東銀座駅(4番出口)の他に銀座駅(A5番出口)徒歩4分、銀座一丁目駅(11番出口)徒歩7分で利用も可能です。

