ワイズビルディングのテナント募集中区画
| 階数 | 面積 | 賃料(共益費含む) | 保証金 | 入居可能日 | 検討リスト | 詳細 |
|---|---|---|---|---|---|---|
| 2 | 102.19坪 | 応相談(応相談) | 応相談 | 2026年4月上旬 |
…新着物件
ワイズビルディングのアクセス
ワイズビルディングの物件情報
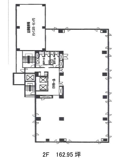
ワイズビルディング(中央区月島)は月島駅(7番出口)から徒歩2分の賃貸オフィスです。佃大橋通り沿いの、8階建のビルで、す。近くに佃公園があり隅田川もすぐの立地です。基準階は70.60坪と90.15坪の2部屋に分かれています。床はフリーアクセスになっています。室外に男女別トイレと給湯室があります。2015年にエントランスと共用部分(トイレ含む)がリニューアル済みです。ビルにはタワーパーキングもありますので、お車をご使用の方にお勧めの物件です。ワイズビルディングは月島駅(7番出口)の他に新富町駅(7番出口)徒歩12分、勝どき駅(A1番出口)徒歩13分で利用も可能です。

