6階 601は現在募集がありません
1フロア募集区画あり

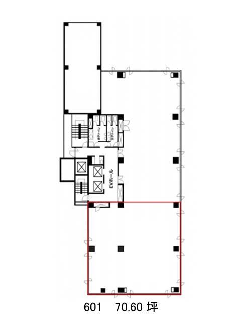
ワイズビルディング 6階 601

前の写真 次の写真

物件概要

物件番号

635-00004-64

物件名

ワイズビルディング

所在地

面積

70.60坪

賃料(共益費含)


入居日

募集終了

保証金

礼金

更新料

償却費

竣工

1992年11月

構造

SRC

規模

地上8階

トイレ

男女別

空調

個別空調

エレベーター

セキュリティ

駐車場

耐震

新耐震基準

基準階天井高

2350mm

空室延床面積

102.19坪

最寄駅

情報更新日

2026/02/10

ワイズビルディングのテナント募集中区画

階数 面積 賃料(共益費含む) 保証金 入居可能日 検討リスト 詳細
2 102.19坪 応相談(応相談) 応相談 2026年4月上旬
…新着物件

ワイズビルディングのアクセス

ワイズビルディングの物件情報

ワイズビルディング(中央区月島)は月島駅(7番出口)から徒歩2分の賃貸オフィスです。
佃大橋通り沿いの、8階建のビルで、す。近くに佃公園があり隅田川もすぐの立地です。基準階は70.60坪と90.15坪の2部屋に分かれています。床はフリーアクセスになっています。室外に男女別トイレと給湯室があります。2015年にエントランスと共用部分(トイレ含む)がリニューアル済みです。ビルにはタワーパーキングもありますので、お車をご使用の方にお勧めの物件です。
ワイズビルディングは月島駅(7番出口)の他に新富町駅(7番出口)徒歩12分、勝どき駅(A1番出口)徒歩13分で利用も可能です。

近隣のエリア・駅から探す