6階は現在募集がありません
グリーンオーク茅場町 6階
物件概要
グリーンオーク茅場町のテナント募集中区画
現在、空室がございません。
グリーンオーク茅場町のアクセス
グリーンオーク茅場町の物件情報
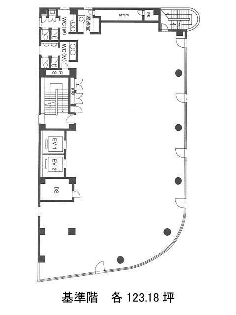
グリーンオーク茅場町(中央区新川)は茅場町駅(出口)から徒歩3分の賃貸オフィスです。交差点の角地に立地しており窓も多いため、日当たりが良好です。外観は全体的にグレーを基調とした色合いで、ライン上に窓が並んでおり、丸みのある部分もあるので、デザイン性が高いです。また周辺には、コンビニや飲食店などが複数あるためとても利便性が高いです。ビル内のトイレは男女別となっており、駐車場もあるため、社用車を使う場合も便利です。基準階は約123坪あり、室内はほぼ長方形の形をしているため、比較的レイアウトは組みやすいでしょう。グリーンオーク茅場町は茅場町駅(出口)の他に水天宮前駅(2番出口)徒歩7分、八丁堀駅(A4番出口)徒歩8分で利用も可能です。

