8階は現在募集がありません
VORT茅場町イースト 8階
物件概要
VORT茅場町イーストのテナント募集中区画
現在、空室がございません。
VORT茅場町イーストのアクセス
VORT茅場町イーストの物件情報
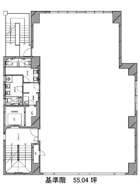
VORT茅場町イースト(中央区新川)は茅場町駅(出口)から徒歩6分の賃貸オフィスです。ダークな色調ですっきりとした外観の地上9階建ビルです。一部壁面緑化されており、道行く人の目を和ませるでしょう。1階にコンビニが入居しています。EV1基・非常階段2箇所・個別空調・執務室外の男女別トイレ・給湯室があります。間取りは柱が中央に無く、レイアウトがしやすいでしょう。OAフロアで配線の自由度も高まります。建物前面の歩道は幅が広くレンガ貼りで綺麗に舗装されています。歩道橋がビルの前にあり、ご案内時の目印となるでしょう。VORT茅場町イーストは茅場町駅(出口)の他に八丁堀駅(B4番出口)徒歩8分、水天宮前駅(2番出口)徒歩9分で利用も可能です。

