4階は現在募集がありません
銀座PREX East 4階
物件概要
銀座PREX Eastのテナント募集中区画
現在、空室がございません。
銀座PREX Eastのアクセス
銀座PREX Eastの物件情報
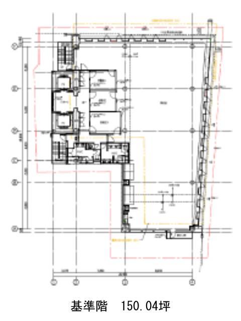
銀座PREX East(中央区築地)は新富町駅(出口)から徒歩2分の賃貸オフィスです。2024年8月竣工、地上10階建てS造の新築ビルです。黒い壁面とガラス貼りで、スタイリッシュな外観デザインをしています。基準階面積は約150坪。ワンフロアワンテナントで、大型の事務所をお探しの会社に良いでしょう。設備仕様として、EV・個別空調・OAフロア(60㎜)・LED照明・男女別トイレが整います。セキュリティとして、機械警備が導入されており、1階エレベーター専有部内に非接触型のカードリーダーが設置されています。銀座PREX Eastは新富町駅(出口)の他に築地駅(4番出口)徒歩3分、八丁堀駅(出口)徒歩8分で利用も可能です。

