HF日本橋兜町ビルディングのテナント募集中区画
| 階数 | 面積 | 賃料(共益費含む) | 保証金 | 入居可能日 | 検討リスト | 詳細 |
|---|---|---|---|---|---|---|
| 3 | 36.77坪 | 応相談(応相談) | 応相談 | 2026年1月中旬 | ||
| 8 | 107.61坪 | 応相談(応相談) | 応相談 | 即 |
…新着物件
アクセス
HF日本橋兜町ビルディングの物件情報
HF日本橋兜町ビルディング(中央区日本橋兜町)は茅場町駅(12番出口)から徒歩4分の賃貸オフィスです。堅実なグレータイルの外観が街並みに馴染む物件。交差点角に位置し、視認性と採光性の両面で好条件がそろっています。
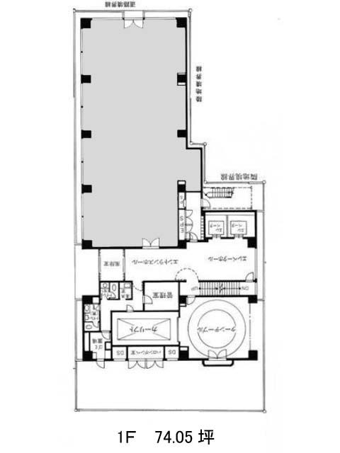
基準階は約108坪と十分な広さがあり、長方形の整形区画に加え、柱はすべて外周部に配置。自由度の高いレイアウトが可能です。水回りは執務スペース外にまとめられており、執務効率を重視する方にも好相性。
さらに、2024年には共用部リニューアルも実施され、間接照明が柔らかく照らすエレベーターホールも印象的です。機械警備や駐車場の設備も整っており、安心感のある働きやすい環境が整っています。HF日本橋兜町ビルディングは茅場町駅(12番出口)の他に八丁堀駅(A5番出口)徒歩5分、日本橋駅(D1番出口)徒歩7分で利用も可能です。

