2階は現在募集がありません
1フロア募集区画あり

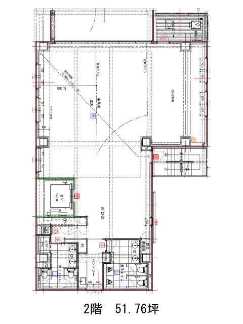
関電不動産茅場町ビル 2階

前の写真 次の写真

物件概要

物件番号

646-00234-1

物件名

関電不動産茅場町ビル

所在地

面積

51.76坪

賃料(共益費含)


入居日

募集終了

保証金

礼金

更新料

償却費

竣工

2025年10月

構造

S造

規模

地上9階

トイレ

男女別

空調

個別空調

エレベーター

セキュリティ

駐車場

耐震

新耐震基準

基準階天井高

2980mm

空室延床面積

57.34坪

最寄駅

情報更新日

2026/03/03

関電不動産茅場町ビルのテナント募集中区画

階数 面積 賃料(共益費含む) 保証金 入居可能日 検討リスト 詳細
5 57.34坪 応相談(応相談) 応相談
…新着物件

関電不動産茅場町ビルのアクセス

関電不動産茅場町ビルの物件情報

関電不動産茅場町ビル(中央区日本橋茅場町)は茅場町駅(2番出口)から徒歩2分の賃貸オフィスです。
当ビルは茅場町駅至近に立地し、アクセス性とデザイン性を兼ね備えた賃貸オフィスです。網目状に組まれた木調のファサードが印象的で、街並みに調和しながらも個性を放ちます。企業のブランディングにもつながる外観です。
共用部も見どころが多く、アートギャラリーのようなエントランスホールは訪れる人に鮮烈な印象を与えます。入居者専用ラウンジは個人ワークや軽い打ち合わせに最適なサードプレイス。さらに、開放感あるルーフテラスも複数のゾーンに分かれており、ちょっとした息抜きや社内交流にも使いやすい設計です。
区画は57坪台の整形フロアで、家具付きセットアッププランも選択可能。入居後すぐに業務を始めたい企業にもフィットします。機能美と柔軟性が両立された、新しい働き方をサポートする一棟です。
関電不動産茅場町ビルは茅場町駅(2番出口)の他に八丁堀駅(A5a番出口)徒歩5分、日本橋駅(D1番出口)徒歩7分で利用も可能です。

近隣のエリア・駅から探す