4階は現在募集がありません
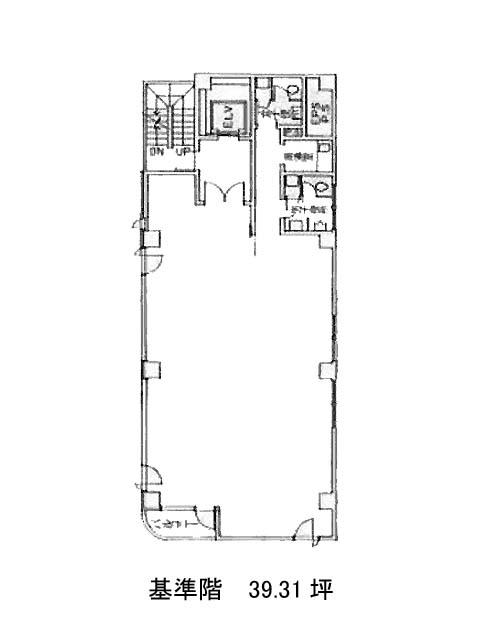
SKKビル 4階
物件概要
SKKビルのテナント募集中区画
現在、空室がございません。
SKKビルのアクセス
SKKビルの物件情報
SKKビル(中央区日本橋茅場町)は茅場町駅(1番出口)から徒歩2分の賃貸オフィスです。SKKビルは茅場町駅(1番出口)の他に八丁堀駅(A4番出口)徒歩3分、日本橋駅(D1番出口)徒歩9分で利用も可能です。

