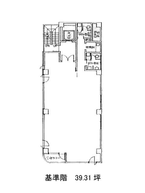
SKKビルのテナント募集中区画
| 階数 | 面積 | 賃料(共益費含む) | 保証金 | 入居可能日 | 検討リスト | 詳細 |
|---|---|---|---|---|---|---|
| 8 | 39.91坪 | 702,414円/月(17,600円/坪) | 311万円 | 即 |
…新着物件
アクセス
SKKビルの物件情報
SKKビル(中央区日本橋茅場町)は茅場町駅(1番出口)から徒歩2分の賃貸オフィスです。SKKビルは茅場町駅(1番出口)の他に八丁堀駅(A4番出口)徒歩3分、日本橋駅(D1番出口)徒歩9分で利用も可能です。

