SKKビル 8階
物件概要
物件番号
646-00067-54物件名
SKKビル所在地
- 東京都中央区日本橋茅場町3-10-2
- アクセスマップ
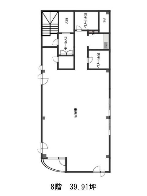
面積
39.91坪賃料(共益費含)
月額702,414円(17,600円/坪)
入居日
即保証金
3,112,980円礼金
なし更新料
新1ケ月償却費
1ケ月竣工
1989年3月構造
SRC規模
地上8階/地下1階トイレ
男女別空調
個別空調エレベーター
有セキュリティ
駐車場
無耐震
新耐震基準基準階天井高
空室延床面積
39.91坪情報更新日
2025/11/04SKKビルのテナント募集中区画
| 階数 | 面積 | 賃料(共益費含む) | 保証金 | 入居可能日 | 検討リスト | 詳細 |
|---|---|---|---|---|---|---|
| 8 | 39.91坪 | 702,414円/月(17,600円/坪) | 311万円 | 即 |
…新着物件
アクセス
SKKビルの物件情報
SKKビル(中央区日本橋茅場町)は茅場町駅(1番出口)から徒歩2分の賃貸オフィスです。SKKビルは茅場町駅(1番出口)の他に八丁堀駅(A4番出口)徒歩3分、日本橋駅(D1番出口)徒歩9分で利用も可能です。

