4階は現在募集がありません
1フロア募集区画あり

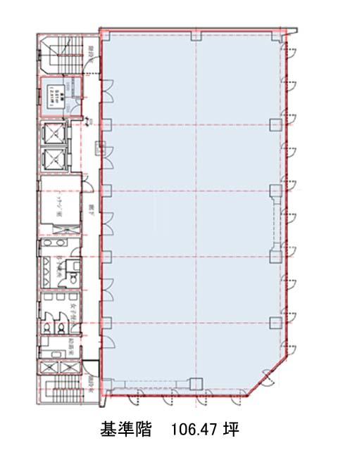
JP茅場町ビル 4階

前の写真 次の写真

物件概要

物件番号

646-00080-10

物件名

JP茅場町ビル

所在地

面積

106.47坪

賃料(共益費含)


入居日

募集終了

保証金

礼金

更新料

償却費

竣工

1974年6月

構造

RC

規模

地上8階/地下2階

トイレ

男女別

空調

セントラル

エレベーター

セキュリティ

駐車場

耐震

耐震補強済み

基準階天井高

2650mm

空室延床面積

77.06坪

最寄駅

情報更新日

2025/12/01

JP茅場町ビルのテナント募集中区画

階数 面積 賃料(共益費含む) 保証金 入居可能日 検討リスト 詳細
7 77.06坪 応相談(応相談) 応相談 2026年1月上旬
…新着物件

アクセス

JP茅場町ビルの物件情報

JP茅場町ビル(中央区日本橋茅場町)は茅場町駅(6番出口)から徒歩1分の賃貸オフィスです。
外観は全体的に白を基調としたパネル張りで、とてもシンプルな構造になっております。周辺には、コンビニや飲食店などが複数あるためとても利便性が高いです。またビルの1Fにも薬局が入っているため、休憩時などに活用しやすいでしょう。ビル内にはOAフロアが備えられており、トイレは男女別となっております。駐車場もあるため、社用車を使う場合も便利です。基準階は約100坪あり、室内はほぼ長方形の形をしているため、比較的レイアウトは組みやすいでしょう。
JP茅場町ビルは茅場町駅(6番出口)の他に日本橋駅(D1番出口)徒歩5分、八丁堀駅(A5番出口)徒歩7分で利用も可能です。

近隣のエリア・駅から探す