JP茅場町ビルのテナント募集中区画
| 階数 | 面積 | 賃料(共益費含む) | 保証金 | 入居可能日 | 検討リスト | 詳細 |
|---|---|---|---|---|---|---|
| 7 | 77.06坪 | 応相談(応相談) | 応相談 | 2026年1月上旬 |
…新着物件
アクセス
JP茅場町ビルの物件情報
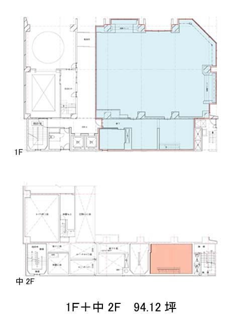
JP茅場町ビル(中央区日本橋茅場町)は茅場町駅(6番出口)から徒歩1分の賃貸オフィスです。外観は全体的に白を基調としたパネル張りで、とてもシンプルな構造になっております。周辺には、コンビニや飲食店などが複数あるためとても利便性が高いです。またビルの1Fにも薬局が入っているため、休憩時などに活用しやすいでしょう。ビル内にはOAフロアが備えられており、トイレは男女別となっております。駐車場もあるため、社用車を使う場合も便利です。基準階は約100坪あり、室内はほぼ長方形の形をしているため、比較的レイアウトは組みやすいでしょう。JP茅場町ビルは茅場町駅(6番出口)の他に日本橋駅(D1番出口)徒歩5分、八丁堀駅(A5番出口)徒歩7分で利用も可能です。

