THE CORNER 日本橋人形町のテナント募集中区画
| 階数 | 面積 | 賃料(共益費含む) | 保証金 | 入居可能日 | 検討リスト | 詳細 |
|---|---|---|---|---|---|---|
| 6 | 43.47坪 | 1,099,791円/月(25,300円/坪) | 599万円 | 2026年2月上旬 |
…新着物件
アクセス
THE CORNER 日本橋人形町の物件情報
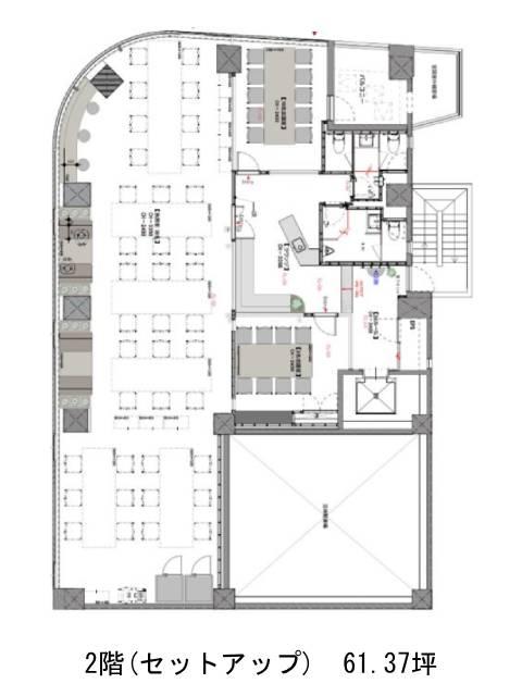
THE CORNER 日本橋人形町(中央区日本橋人形町)は人形町駅(A4番出口)から徒歩3分の賃貸オフィスです。2023年10月に大規模リニューアルを終えた本物件は、日本橋人形町エリアの角地に立地し、利便性と快適性を兼ね備えています。貸室は20坪台から60坪台までと柔軟性が高く、セットアップオフィス区画もあるため、すぐに業務スタートが可能。打ち合わせスペースや執務スペースがバランスよくレイアウトされており、効率的なオフィス運用が期待できます。
周辺にはコンビニや飲食店が多く、ビジネスランチやちょっとした買い物にも困りません。さらに、駐車場やホテルも近く、来客対応や地方拠点としての活用にも好相性。設備面では男女別トイレや個別空調、機械警備など、安心して働ける環境が整っています。
内装の刷新とともに、ビル全体の印象も明るく一新されており、「きれいなオフィスで働きたい」「人形町で雰囲気のよい立地を探している」といった企業ニーズにもマッチします。THE CORNER 日本橋人形町は人形町駅(A4番出口)の他に馬喰横山駅(A3番出口)徒歩7分、小伝馬町駅(1番出口)徒歩7分で利用も可能です。

