2階 203は現在募集がありません
1フロア募集区画あり

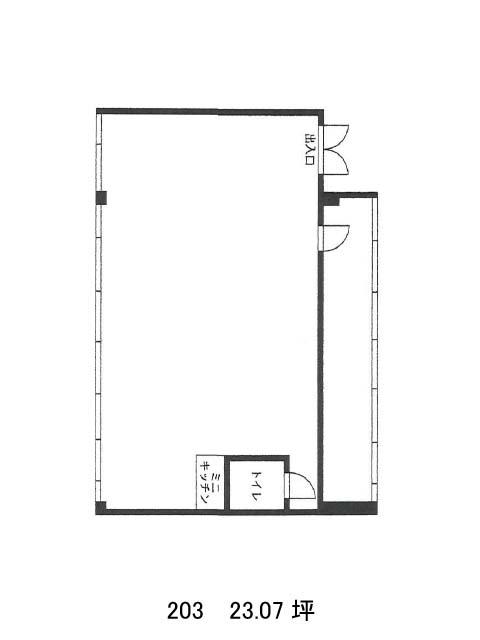
リガーレ日本橋人形町ANNEX 2階 203

前の写真 次の写真

物件概要

物件番号

652-00197-30

物件名

リガーレ日本橋人形町ANNEX

所在地

面積

23.07坪

賃料(共益費含)


入居日

募集終了

保証金

礼金

更新料

償却費

竣工

2007年10月

構造

RC

規模

地上3階/地下1階

トイレ

男女別

空調

エレベーター

セキュリティ

駐車場

耐震

新耐震基準

基準階天井高

2590mm

空室延床面積

26.80坪

最寄駅

情報更新日

2025/12/17

リガーレ日本橋人形町ANNEXのテナント募集中区画

階数 面積 賃料(共益費含む) 保証金 入居可能日 検討リスト 詳細
2 26.80坪 536,000円/月(20,000円/坪) 146万円 2026年3月下旬
…新着物件

リガーレ日本橋人形町ANNEXのアクセス

リガーレ日本橋人形町ANNEXの物件情報

リガーレ日本橋人形町ANNEX(中央区日本橋人形町)は水天宮前駅(8番出口)から徒歩2分の賃貸オフィスです。
リガーレ日本橋人形町ANNEXは水天宮前駅(8番出口)の他に人形町駅(A2番出口)徒歩2分、茅場町駅(4A番出口)徒歩8分で利用も可能です。

近隣のエリア・駅から探す