9階は現在募集がありません
1フロア募集区画あり

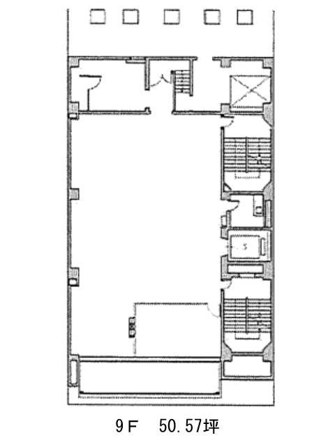
岩清日本橋ビル 9階

前の写真 次の写真

物件概要

物件番号

653-00028-170

物件名

岩清日本橋ビル

所在地

面積

50.57坪

賃料(共益費含)


入居日

募集終了

保証金

礼金

更新料

償却費

竣工

1981年4月

構造

SRC

規模

地上9階

トイレ

男女別

空調

個別空調

エレベーター

セキュリティ

駐車場

耐震

耐震補強済み

基準階天井高

2600mm

空室延床面積

83.00坪

最寄駅

情報更新日

2026/02/18

岩清日本橋ビルのテナント募集中区画

階数 面積 賃料(共益費含む) 保証金 入居可能日 検討リスト 詳細
4 83.00坪 1,460,800円/月(17,600円/坪) 1,062万円
…新着物件

岩清日本橋ビルのアクセス

岩清日本橋ビルの物件情報

岩清日本橋ビル(中央区日本橋大伝馬町)は小伝馬町駅(3番出口)から徒歩3分の賃貸オフィスです。
外観は全体的にベージュのタイル張りで、とてもシンプルなデザインとなっております。エントランスホールは広々としていて開放感があり、とても落ち着いた空間となっております。基準階は約71坪あり、室内は長方形の整形オフィスのため、効率の良いレイアウトが組めそうです。ビル内にはOAフロアが備えられており、トイレは男女別となっております。また周辺にはコンビニや飲食店、郵便局、銀行などが複数あるためとても利便性が高いです。
岩清日本橋ビルは小伝馬町駅(3番出口)の他に新日本橋駅(5番出口)徒歩6分、馬喰横山駅(A1番出口)徒歩6分で利用も可能です。

近隣のエリア・駅から探す