3階は現在募集がありません
1フロア募集区画あり

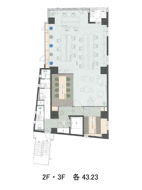
Ikigai Bashiビル 3階

前の写真 次の写真

物件概要

物件番号

653-00003-30

物件名

Ikigai Bashiビル

所在地

面積

43.23坪

賃料(共益費含)


入居日

募集終了

保証金

礼金

更新料

償却費

竣工

1984年4月

構造

SRC

規模

地上9階

トイレ

男女別

空調

個別空調

エレベーター

セキュリティ

駐車場

耐震

新耐震基準

基準階天井高

2800mm

空室延床面積

21.86坪

最寄駅

情報更新日

2026/02/05

Ikigai Bashiビルのテナント募集中区画

階数 面積 賃料(共益費含む) 保証金 入居可能日 検討リスト 詳細
9 21.86坪 529,012円/月(24,200円/坪) 240万円 2026年6月上旬
…新着物件

Ikigai Bashiビルのアクセス

Ikigai Bashiビルの物件情報

Ikigai Bashiビル(中央区日本橋大伝馬町)は小伝馬町駅(3番出口)から徒歩3分の賃貸オフィスです。
2017年に大規模リニューアルが実施され、共用部から貸室までしっかりと手が入った本物件。
温かみのあるウッド調と石張りを基調としたエントランスは、初めて訪れる方にも好印象を与えてくれそうです。
基準となる貸室は約43坪のセットアップオフィス仕様で、レイアウトの工夫次第で様々な働き方にフィット。
特に室内に設けられた会議室スペースは、執務エリアとの動線バランスもよく、来客動線と業務空間を程よく分けたい企業にはうれしいポイントです。
周辺には大手銀行の支店やコンビニ、飲食店が揃っており、日常的な利便性もしっかり。
「ランチに困らない街」として、働く人にも人気の高いエリアです!
Ikigai Bashiビルは小伝馬町駅(3番出口)の他に新日本橋駅(5番出口)徒歩6分、馬喰横山駅(A1番出口)徒歩7分で利用も可能です。

近隣のエリア・駅から探す