Ikigai Bashiビル 6階
物件概要
物件番号
653-00003-60物件名
Ikigai Bashiビル所在地
- 東京都中央区日本橋大伝馬町1-7
- アクセスマップ
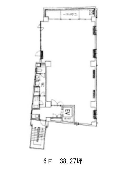
面積
38.27坪賃料(共益費含)
月額673,552円(17,600円/坪)
入居日
2025年12月上旬保証金
2,449,280円礼金
なし更新料
なし償却費
なし竣工
1984年4月構造
SRC規模
地上9階トイレ
男女別空調
個別空調エレベーター
有セキュリティ
有駐車場
無耐震
新耐震基準基準階天井高
2800mm空室延床面積
38.27坪情報更新日
2025/11/20Ikigai Bashiビルのテナント募集中区画
| 階数 | 面積 | 賃料(共益費含む) | 保証金 | 入居可能日 | 検討リスト | 詳細 |
|---|---|---|---|---|---|---|
| 6 | 38.27坪 | 673,552円/月(17,600円/坪) | 244万円 | 2025年12月上旬 |
…新着物件
アクセス
Ikigai Bashiビルの物件情報
Ikigai Bashiビル(中央区日本橋大伝馬町)は小伝馬町駅(3番出口)から徒歩3分の賃貸オフィスです。2017年に大規模リニューアルが実施され、共用部から貸室までしっかりと手が入った本物件。
温かみのあるウッド調と石張りを基調としたエントランスは、初めて訪れる方にも好印象を与えてくれそうです。
基準となる貸室は約43坪のセットアップオフィス仕様で、レイアウトの工夫次第で様々な働き方にフィット。
特に室内に設けられた会議室スペースは、執務エリアとの動線バランスもよく、来客動線と業務空間を程よく分けたい企業にはうれしいポイントです。
周辺には大手銀行の支店やコンビニ、飲食店が揃っており、日常的な利便性もしっかり。
「ランチに困らない街」として、働く人にも人気の高いエリアです!Ikigai Bashiビルは小伝馬町駅(3番出口)の他に新日本橋駅(5番出口)徒歩6分、馬喰横山駅(A1番出口)徒歩7分で利用も可能です。

