5階は現在募集がありません
1フロア募集区画あり

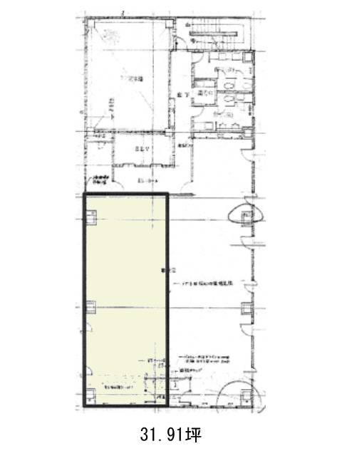
KVK日本橋浜町ビル 5階

前の写真 次の写真

物件概要

物件番号

657-00094-60

物件名

KVK日本橋浜町ビル

所在地

面積

31.91坪

賃料(共益費含)


入居日

募集終了

保証金

礼金

更新料

償却費

竣工

1993年12月

構造

SRC

規模

地上10階

トイレ

男女別

空調

個別空調

エレベーター

セキュリティ

駐車場

耐震

新耐震基準

基準階天井高

2600mm

空室延床面積

59.01坪

最寄駅

情報更新日

2025/10/17

KVK日本橋浜町ビルのテナント募集中区画

階数 面積 賃料(共益費含む) 保証金 入居可能日 検討リスト 詳細
8 59.01坪 応相談(応相談) 応相談
…新着物件

アクセス

KVK日本橋浜町ビルの物件情報

KVK日本橋浜町ビル(中央区日本橋浜町)は浜町駅(出口)から徒歩2分の賃貸オフィスです。
清洲橋通り沿いの角地に堂々と佇む、個性的なファサードが目を引くオフィスビルです。最寄り駅からもアクセス良好で、視認性・利便性ともに高い立地が魅力です。
基準階は約67坪の整形に近い間取りで、自由度の高いレイアウトが可能。設備面も充実しており、OAフロアや個別空調、男女別トイレのほか、機械警備を採用し安心のセキュリティ体制を確保。さらに、来客時や社用車の利用に便利な駐車場も完備されています。
KVK日本橋浜町ビルは浜町駅(出口)の他に人形町駅(A1番出口)徒歩7分、水天宮前駅(5番出口)徒歩8分で利用も可能です。

近隣のエリア・駅から探す