KVK日本橋浜町ビル 8階
物件概要
物件番号
657-00094-90物件名
KVK日本橋浜町ビル所在地
- 東京都中央区日本橋浜町2-30-1
- アクセスマップ
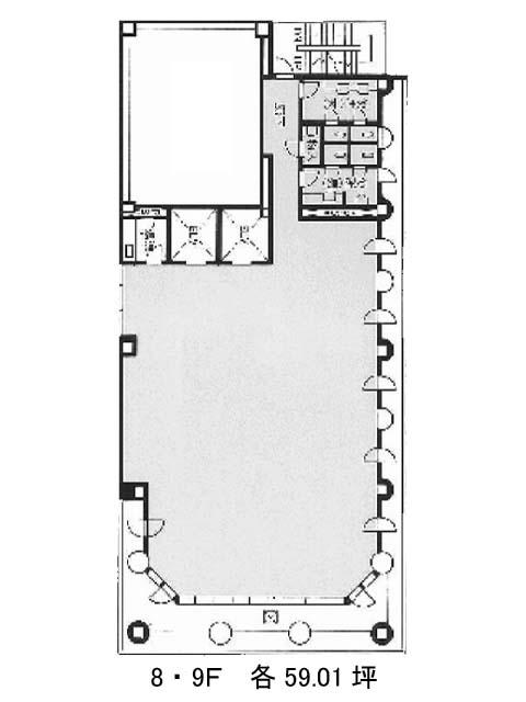
面積
59.01坪賃料(共益費含)
:応相談応相談
入居日
即保証金
応相談礼金
なし更新料
なし償却費
なし竣工
1993年12月構造
SRC規模
地上10階トイレ
男女別空調
個別空調エレベーター
有セキュリティ
有駐車場
有耐震
新耐震基準基準階天井高
2600mm空室延床面積
59.01坪情報更新日
2025/10/17KVK日本橋浜町ビルのテナント募集中区画
| 階数 | 面積 | 賃料(共益費含む) | 保証金 | 入居可能日 | 検討リスト | 詳細 |
|---|---|---|---|---|---|---|
| 8 | 59.01坪 | 応相談(応相談) | 応相談 | 即 |
…新着物件
アクセス
KVK日本橋浜町ビルの物件情報
KVK日本橋浜町ビル(中央区日本橋浜町)は浜町駅(出口)から徒歩2分の賃貸オフィスです。清洲橋通り沿いの角地に堂々と佇む、個性的なファサードが目を引くオフィスビルです。最寄り駅からもアクセス良好で、視認性・利便性ともに高い立地が魅力です。
基準階は約67坪の整形に近い間取りで、自由度の高いレイアウトが可能。設備面も充実しており、OAフロアや個別空調、男女別トイレのほか、機械警備を採用し安心のセキュリティ体制を確保。さらに、来客時や社用車の利用に便利な駐車場も完備されています。KVK日本橋浜町ビルは浜町駅(出口)の他に人形町駅(A1番出口)徒歩7分、水天宮前駅(5番出口)徒歩8分で利用も可能です。

