日本橋本町東石ビルのテナント募集中区画
| 階数 | 面積 | 賃料(共益費含む) | 保証金 | 入居可能日 | 検討リスト | 詳細 |
|---|---|---|---|---|---|---|
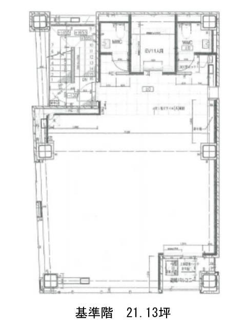
| 10 | 21.13坪 | 464,860円/月(22,000円/坪) | 422万円 | 即 |
…新着物件
アクセス
日本橋本町東石ビルの物件情報
日本橋本町東石ビル(中央区日本橋本町)は新日本橋駅(8番出口)から徒歩2分の賃貸オフィスです。日本橋本町東石ビルは新日本橋駅(8番出口)の他に小伝馬町駅(出口)徒歩4分、三越前駅(A10番出口)徒歩6分で利用も可能です。

