5階は現在募集がありません
2フロア募集区画あり

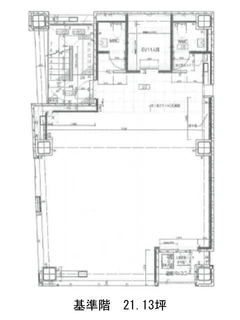
日本橋本町東石ビル 5階

前の写真 次の写真

物件概要

物件番号

661-00248-5

物件名

日本橋本町東石ビル

所在地

面積

21.13坪

賃料(共益費含)


入居日

募集終了

保証金

礼金

更新料

償却費

竣工

2023年1月

構造

S造

規模

地上14階

トイレ

男女別

空調

個別空調

エレベーター

セキュリティ

駐車場

耐震

新耐震基準

基準階天井高

空室延床面積

42.26坪

最寄駅

情報更新日

2026/01/19

日本橋本町東石ビルのテナント募集中区画

階数 面積 賃料(共益費含む) 保証金 入居可能日 検討リスト 詳細
9 21.13坪 464,860円/月(22,000円/坪) 422万円 2026年2月中旬
10 21.13坪 464,860円/月(22,000円/坪) 422万円
…新着物件

アクセス

日本橋本町東石ビルの物件情報

日本橋本町東石ビル(中央区日本橋本町)は新日本橋駅(8番出口)から徒歩2分の賃貸オフィスです。
日本橋本町東石ビルは新日本橋駅(8番出口)の他に小伝馬町駅(出口)徒歩4分、三越前駅(A10番出口)徒歩6分で利用も可能です。

近隣のエリア・駅から探す