関口ビル 6階
物件概要
物件番号
662-00023-30物件名
関口ビル所在地
- 東京都中央区日本橋蛎殻町2-2-2
- アクセスマップ
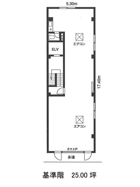
面積
25.00坪賃料(共益費含)
月額253,300円(10,132円/坪)
入居日
相談保証金
909,100円礼金
1ケ月更新料
新1ケ月償却費
1ケ月竣工
1972年7月構造
RC規模
地上6階トイレ
男女共用空調
個別空調エレベーター
有セキュリティ
駐車場
無耐震
旧耐震基準基準階天井高
空室延床面積
25.00坪情報更新日
2025/09/05関口ビルのテナント募集中区画
| 階数 | 面積 | 賃料(共益費含む) | 保証金 | 入居可能日 | 検討リスト | 詳細 |
|---|---|---|---|---|---|---|
| 6 | 25.00坪 | 253,300円/月(10,132円/坪) | 90万円 | 相談 |
…新着物件
アクセス
関口ビルの物件情報
関口ビル(中央区日本橋蛎殻町)は水天宮前駅(1b番出口)から徒歩2分の賃貸オフィスです。関口ビルは水天宮前駅(1b番出口)の他に人形町駅(A2番出口)徒歩6分、茅場町駅(4A番出口)徒歩9分で利用も可能です。

