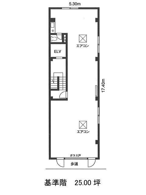
関口ビルのテナント募集中区画
| 階数 | 面積 | 賃料(共益費含む) | 保証金 | 入居可能日 | 検討リスト | 詳細 |
|---|---|---|---|---|---|---|
| 6 | 25.00坪 | 253,300円/月(10,132円/坪) | 90万円 | 相談 |
…新着物件
アクセス
関口ビルの物件情報
関口ビル(中央区日本橋蛎殻町)は水天宮前駅(1b番出口)から徒歩2分の賃貸オフィスです。関口ビルは水天宮前駅(1b番出口)の他に人形町駅(A2番出口)徒歩6分、茅場町駅(4A番出口)徒歩9分で利用も可能です。

