2階は現在募集がありません
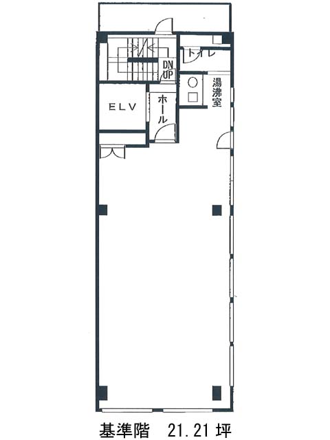
双鶴八重洲ビル 2階
物件概要
双鶴八重洲ビルのテナント募集中区画
現在、空室がございません。
双鶴八重洲ビルのアクセス
双鶴八重洲ビルの物件情報
双鶴八重洲ビル(中央区八丁堀)は八丁堀駅(A5番出口)から徒歩6分の賃貸オフィスです。双鶴八重洲ビルは八丁堀駅(A5番出口)の他に茅場町駅(12番出口)徒歩6分、宝町駅(A8番出口)徒歩6分で利用も可能です。

