6階は現在募集がありません
日精ビルディング(大崎ニューシティ3号館) 6階
物件概要
日精ビルディング(大崎ニューシティ3号館)のテナント募集中区画
現在、空室がございません。
日精ビルディング(大崎ニューシティ3号館)のアクセス
日精ビルディング(大崎ニューシティ3号館)の物件情報
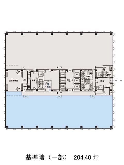
日精ビルディング(大崎ニューシティ3号館)(品川区大崎)は大崎駅(東口)から徒歩3分の賃貸オフィスです。大崎駅よりペデストリアンデッキで直結しておりアクセス抜群。地上21階、地下2階建ての鉄骨鉄筋コンクリート造、鉄骨及び鉄筋コンクリート造です。周辺には大型のオフィスビルが建ち並び、複数の飲食店がビル内にあるので食事や打ち合わせをする際に便利です。また郵便局や銀行も徒歩圏内にあり事務作業もしやすい環境です。基準階面積は約408坪あり、エレベーターホールと水回りなどを堺に長方形のオフィスが左右に分かれております。主な設備面は、室外男女別トイレ、セントラル空調、OAフロア、エレベーターも複数設置されており昇降もスムーズです。駐車場も完備されており、オフィス環境の整った大型物件と言えるでしょう。日精ビルディング(大崎ニューシティ3号館)は大崎駅(東口)の他に大崎広小路駅(出口)徒歩11分、五反田駅(出口)徒歩12分で利用も可能です。

