5階は現在募集がありません
ACN品川御殿山ビル 5階
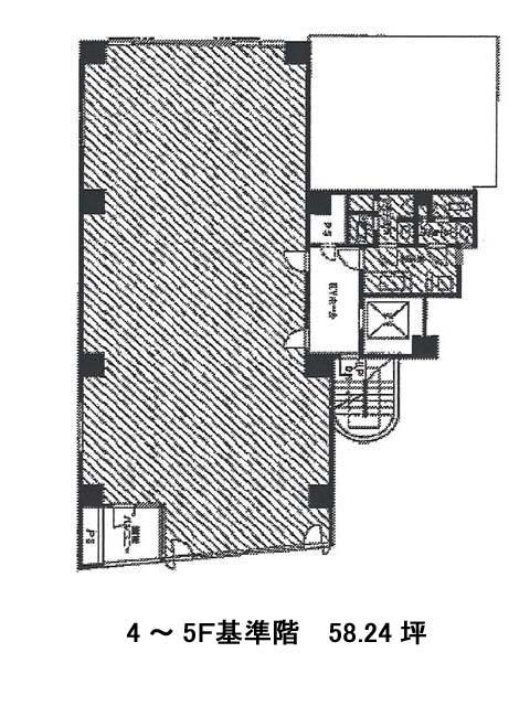
物件概要
ACN品川御殿山ビルのテナント募集中区画
現在、空室がございません。
ACN品川御殿山ビルのアクセス
ACN品川御殿山ビルの物件情報
ACN品川御殿山ビル(品川区北品川)は北品川駅(出口)から徒歩3分の賃貸オフィスです。ACN品川御殿山ビルは北品川駅(出口)の他に新馬場駅(北口)徒歩5分、品川駅(高輪口)徒歩14分で利用も可能です。

