5階 501は現在募集がありません
1フロア募集区画あり

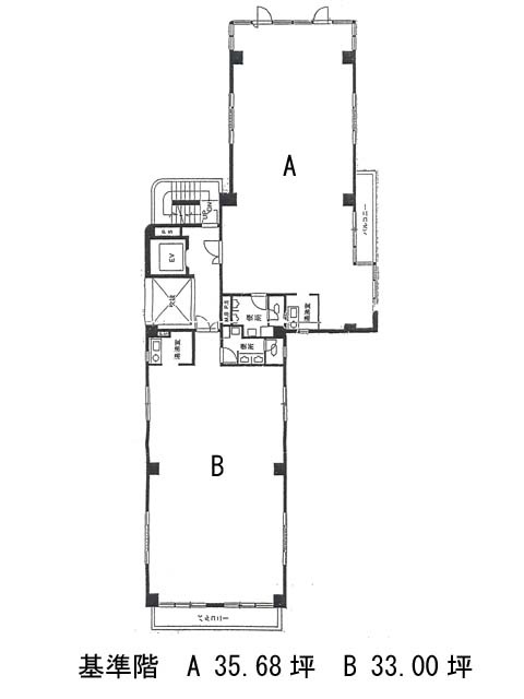
湯島不二ビル 5階 501

前の写真 次の写真

物件概要

物件番号

786-00002-50

物件名

湯島不二ビル

所在地

面積

35.68坪

賃料(共益費含)


入居日

募集終了

保証金

礼金

更新料

償却費

竣工

1985年8月

構造

SRC

規模

地上10階

トイレ

男女共用

空調

個別空調

エレベーター

セキュリティ

駐車場

耐震

新耐震基準

基準階天井高

2450mm

空室延床面積

33.00坪

最寄駅

情報更新日

2025/11/12

湯島不二ビルのテナント募集中区画

階数 面積 賃料(共益費含む) 保証金 入居可能日 検討リスト 詳細
5 33.00坪 471,900円/月(14,300円/坪) 257万円 2025年12月下旬
…新着物件

アクセス

湯島不二ビルの物件情報

湯島不二ビル(文京区湯島)は湯島駅(6番出口)から徒歩2分の賃貸オフィスです。
湯島不二ビルは湯島駅(6番出口)の他に末広町駅(4番出口)徒歩5分、上野広小路駅(A1番出口)徒歩8分で利用も可能です。

近隣のエリア・駅から探す