湯島不二ビル 5階 502
物件概要
物件番号
786-00002-60物件名
湯島不二ビル所在地
- 東京都文京区湯島3-13-8
- アクセスマップ
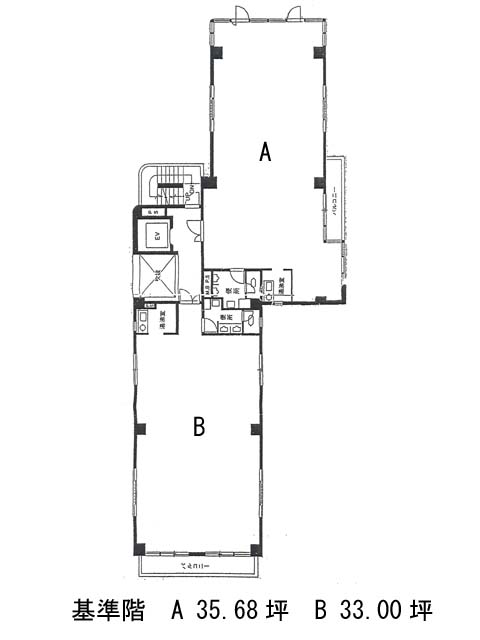
面積
33.00坪賃料(共益費含)
月額471,900円(14,300円/坪)
入居日
2025年12月下旬保証金
2,574,000円礼金
なし更新料
新1ケ月償却費
2ケ月竣工
1985年8月構造
SRC規模
地上10階トイレ
男女共用空調
個別空調エレベーター
有セキュリティ
有駐車場
無耐震
新耐震基準基準階天井高
2450mm空室延床面積
33.00坪情報更新日
2025/11/12湯島不二ビルのテナント募集中区画
| 階数 | 面積 | 賃料(共益費含む) | 保証金 | 入居可能日 | 検討リスト | 詳細 |
|---|---|---|---|---|---|---|
| 5 | 33.00坪 | 471,900円/月(14,300円/坪) | 257万円 | 2025年12月下旬 |
…新着物件
アクセス
湯島不二ビルの物件情報
湯島不二ビル(文京区湯島)は湯島駅(6番出口)から徒歩2分の賃貸オフィスです。湯島不二ビルは湯島駅(6番出口)の他に末広町駅(4番出口)徒歩5分、上野広小路駅(A1番出口)徒歩8分で利用も可能です。

