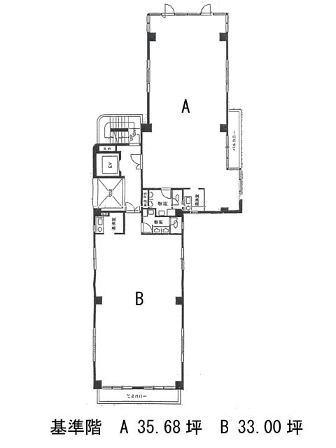
湯島不二ビルのテナント募集中区画
| 階数 | 面積 | 賃料(共益費含む) | 保証金 | 入居可能日 | 検討リスト | 詳細 |
|---|---|---|---|---|---|---|
| 5 | 33.00坪 | 471,900円/月(14,300円/坪) | 257万円 | 2025年12月下旬 |
…新着物件
アクセス
湯島不二ビルの物件情報
湯島不二ビル(文京区湯島)は湯島駅(6番出口)から徒歩2分の賃貸オフィスです。湯島不二ビルは湯島駅(6番出口)の他に末広町駅(4番出口)徒歩5分、上野広小路駅(A1番出口)徒歩8分で利用も可能です。

