TS.ONE 6階
物件概要
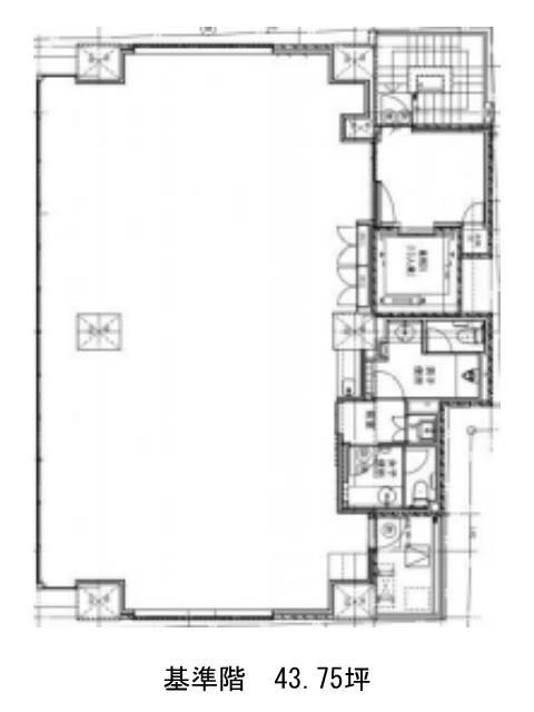
TS.ONEのテナント募集中区画
| 階数 | 面積 | 賃料(共益費含む) | 保証金 | 入居可能日 | 検討リスト | 詳細 |
|---|---|---|---|---|---|---|
| 3 | 43.75坪 | 応相談(応相談) | 応相談 | 即 | ||
| 4 | 43.75坪 | 応相談(応相談) | 応相談 | 即 | ||
| 5 | 43.75坪 | 応相談(応相談) | 応相談 | 即 | ||
| 6 | 43.75坪 | 応相談(応相談) | 応相談 | 即 |
…新着物件
TS.ONEのアクセス
TS.ONEの物件情報
TS.ONE(文京区湯島)は湯島駅(1番出口)から徒歩1分の賃貸オフィスです。TS.ONEは湯島駅(1番出口)の他に上野御徒町駅(A4番出口)徒歩5分、上野広小路駅(A3番出口)徒歩6分で利用も可能です。

