TS.ONE 7階

前の写真 次の写真

物件概要

物件番号

786-00350-6

物件名

TS.ONE

所在地

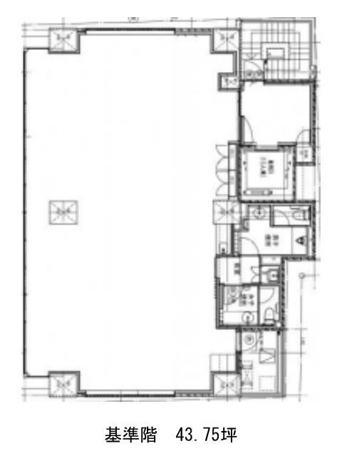
面積

43.75坪

賃料(共益費含)

:応相談
応相談

入居日

保証金

応相談

礼金

なし

更新料

新1ケ月

償却費

20%

竣工

2025年2月

構造

RC

規模

地上9階

トイレ

男女別

空調

個別空調

エレベーター

セキュリティ

駐車場

耐震

新耐震基準

基準階天井高

3500mm

空室延床面積

306.25坪

最寄駅

情報更新日

2025/11/21

TS.ONEのテナント募集中区画

階数 面積 賃料(共益費含む) 保証金 入居可能日 検討リスト 詳細
3 43.75坪 応相談(応相談) 応相談
4 43.75坪 応相談(応相談) 応相談
5 43.75坪 応相談(応相談) 応相談
6 43.75坪 応相談(応相談) 応相談
7 43.75坪 応相談(応相談) 応相談
8 43.75坪 応相談(応相談) 応相談
9 43.75坪 応相談(応相談) 応相談
…新着物件

アクセス

TS.ONEの物件情報

TS.ONE(文京区湯島)は湯島駅(1番出口)から徒歩1分の賃貸オフィスです。
TS.ONEは湯島駅(1番出口)の他に上野御徒町駅(A4番出口)徒歩5分、上野広小路駅(A3番出口)徒歩6分で利用も可能です。

近隣のエリア・駅から探す