3階は現在募集がありません
亀戸センタービル 3階
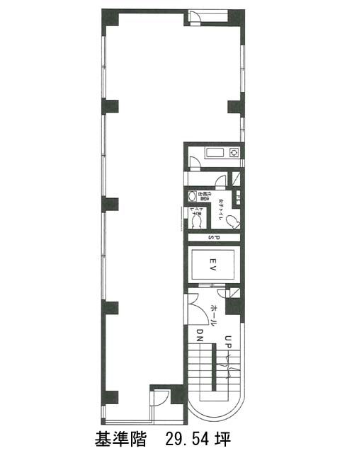
物件概要
亀戸センタービルのテナント募集中区画
現在、空室がございません。
亀戸センタービルのアクセス
亀戸センタービルの物件情報
亀戸センタービル(江東区亀戸)は亀戸駅(北口)から徒歩5分の賃貸オフィスです。亀戸センタービルは亀戸駅(北口)の他に西大島駅(A3番出口)徒歩9分で利用も可能です。

