1階は現在募集がありません
Daiwa東池袋ビル 1階
物件概要
Daiwa東池袋ビルのテナント募集中区画
現在、空室がございません。
Daiwa東池袋ビルのアクセス
Daiwa東池袋ビルの物件情報
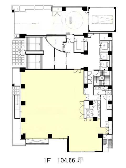
Daiwa東池袋ビル(豊島区東池袋)は向原駅(停留所)から徒歩6分の賃貸オフィスです。1993年竣工の地上9階、地下1階建ての鉄骨鉄筋コンクリート造のビルです。外観はガラス張りで窓面が多く、採光が望めるでしょう。エントランスも清潔感のある雰囲気で来客の際も好印象でしょう。貸室内は、柱が壁側にあり、整形オフィスのため、比較的自由にレイアウトを組むことが可能です。設備面はエレベーターが3基設置されており、OAフロア、トイレは男女別です。ビル周辺にはコンビニが複数あり、飲食店も徒歩圏内にあるため、利便性が高いです。Daiwa東池袋ビルは向原駅(停留所)の他に東池袋駅(6番出口)徒歩9分、東池袋四丁目駅(停留所)徒歩9分で利用も可能です。

